
Extension d’un bâtiment industriel – Aizenay (85190)
Projet En cours
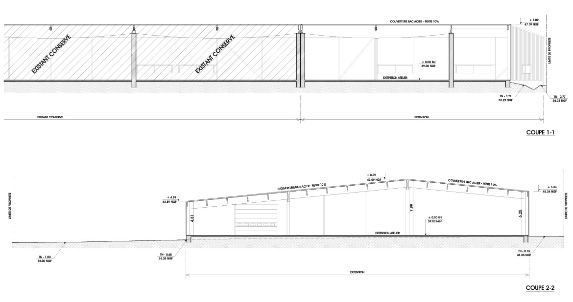
Découvrez cette réalisation architecturale et technique : l’extension d’un bâtiment industriel dédié à un atelier de menuiserie bois, situé à Aizenay, en Vendée.
Ce projet vient compléter un bâtiment existant de 2500 m² par une extension d’environ 1400 m², pensée pour accompagner l’évolution de l’entreprise et optimiser ses capacités de production.
L’architecture de cette extension se caractérise par une esthétique industrielle contemporaine, alliant fonctionnalité et identité visuelle.
Le bardage métallique sombre lui confère une silhouette élégante et robuste, tandis que les lames verticales en bois apportent une touche chaleureuse et qualitative, en écho à l’activité même de l’atelier. Ces éléments bois rythment les façades et créent un contraste harmonieux avec le bardage métallique.
De larges ouvertures techniques et de grands murs rideaux viennent structurer la façade, permettant d’assurer un apport généreux en lumière naturelle et de faciliter les flux logistiques indispensables au bon fonctionnement de l’atelier.
L’extension s’intègre naturellement au bâtiment existant, reprenant ses proportions tout en modernisant son expression architecturale.
Les volumes généreux offrent des espaces modulables capables d’accueillir des machines et process industriels de grande dimension. L’organisation intérieure, pensée autour de la fluidité des circulations et de la performance opérationnelle, répond aux exigences d’un atelier de menuiserie moderne.
L’Agence AB.MO accompagne une agence d’architecture sablaise en sous-traitance dans la réalisation complète du permis de construire de cette extension industrielle.
Notre mission a consisté à produire l’ensemble du dossier réglementaire, avec rigueur et précision, afin de garantir une instruction fluide et conforme aux attentes du maître d’ouvrage comme aux exigences administratives.
Ce projet à Aizenay témoigne de notre expertise dans la conception et l’accompagnement de professionnels dans des projets industriels, où performance, durabilité et qualité architecturale se rencontrent.
Si vous souhaitez étendre ou transformer vos bâtiments professionnels en Vendée, nous serons ravis de vous accompagner dans la concrétisation de vos ambitions.












